所沢市上安松 戸建 2,190万

  • 情報公開日:2026.05.25
  • 次回更新予定日:2026.06.09
中古一戸建て

■所沢駅からバス便が利用可能で、停歩3分という立地ながら落ち着いた住環境!■スーパーやコンビニ等生活利便施設も徒歩圏内■各居室収納・床下収納・リビング収納等、収納にも困りません※インスペクション実施済※既存不適格物件(違法建築の可能性有)

詳細

物件番号
c096602-1628
所在地
所沢市大字上安松
アクセス
JR武蔵野線 [新秋津駅] 徒歩19分
西武池袋・豊島線 [秋津駅] 徒歩20分
価格
2,190 万円
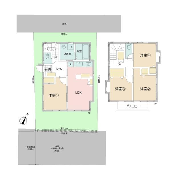
間取り
4LDK
駐車場
土地
82 m²
建物
67.06 m²
築年
1972年10月
接道状況
一方 (東南 4m 私道)
建物構造
木造
階数
2階建て
建物現況
空家
引渡時期
相談
都市計画
市街化区域
用途地域
第一種低層住居専用地域
建蔽率
50 %
容積率
80 %
セットバック
-
取引態様
媒介
土地権利
所有権
地代
-

設備

  • 平坦地
  • 整形地
  • 閑静な住宅地
  • 階建:2階建
  • 部屋向き:南東向き
  • 日当り良好
  • 通風良好
  • ガス:都市ガス
  • 全居室フローリング
  • 全居室収納
  • 収納スペース
  • クローゼット
  • 床下収納
  • システムキッチン
  • 独立洗面台
  • シャンプードレッサー
  • オートバス
  • 追い焚き
  • 浴室に窓
  • 浴室乾燥機
  • トイレ2ヶ所
  • 洗浄便座:温水洗浄便座
  • バルコニー:バルコニー有
  • リフォーム:内装リフォーム済
  • 周辺交通量少なめ
  • スーパー 徒歩10分以内
  • 小学校 徒歩10分以内
  • シューズボックス
  • 上水道:公営
  • 汚水:下水道

地図

Now Loading...

資料請求

必須
必須
必須

電話でお問合せ

  • 掲載店舗: 戸田駅店
  • 担当: 小高 一輝
  • 物件No: c096602-1628

LINEでお問合せ

お問い合わせ
ありがとうございます

担当者が確認次第、折り返しご連絡させていただきます。

気軽にLINEで相談 メールで相談